Panelová diskuze - autonomní doprava / revoluce v dopravě

Panelová diskuze - autonomní doprava / revoluce v dopravě

Panelová diskuze - autonomní doprava / revoluce v dopravě
14. 6. 2022 od 18.30 hodin
Technologické centrum UMPRUM, Mikulandská 134/5, Praha 1, 3. patro, auditorium
 
Téma autonomního vozidla se ve společnosti objevuje od 60' let 20tého století a i dříve v románech Julese Verna. Dnešní technologie jsou již blízko tomu, abychom toho dosáhli. Jak se s tímto tématem vypořádat i v šitším kontextu?! Přijďtě se zúčastnit moderované panelové diskuze Robinem Kopeckým do našeho nového Technologického centra UMPRUM.
 
Výkop:
Proč nemáme létající auta?
Pojede někdy hyperloop?
Budou pod městy muskovy tunely pro auta?
Autonomní dopravní vlaky, podvozky (Parallel systems)?
Malí doručovatelé, koloví a vrtuloví droni?
Jaké místo mají autonomní vozy na malých městech a vesnicích?
Pneu nebo kolej? Baterie nebo trolej?
Autonomie?
Technické problémy a řešení?
Obavy institucí?
Hromadná doprava a fáze autonomie?
Obavy cestujících a veřejnost?
 
 
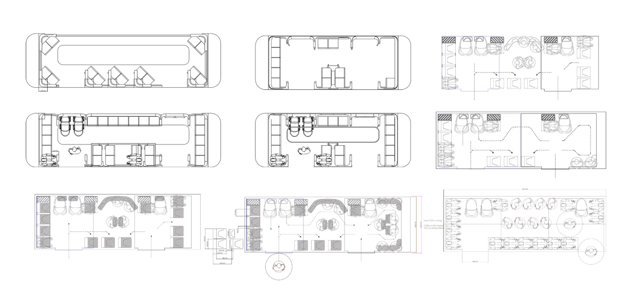
Představení designu řešení autonomních dopravních prostředků a jejich modelů
- autonomní dopravní prostředek jeho interiér (lidské měřítko vs autonomní MHD)
- inkluzivní design + autonomní doprava (dostupnost autonomních vozidel),
- autonomní sdílené městské vozidlo (metabolizace dopravního prostředku vlivem autonomního systému)
- autonomní transport off road (pomocník a sluha v náročném terénu)
 
Konferenci bude moderovat: Mgr. et Mgr. Robin Kopecký
Hosté: Ing. David Sedláček, Ph.D. (FEL ČVUT), doc. Ing. Karel Zimmermann, Ph.D. (FEL ČVUT),  Mgr. Cyril Říha, Ph.D. (UMRPUM), MgA. Tomáš Chludil, Ing. Jan Vrba (Škoda Transportation), PhDr. David Černý, Ph.D.(Centrum Karla Čapka), prof. RNDr. Jiří Wiedermann, DrSc (Akademie věd České republiky)