Open call Galerie UM na rok 2026 prodloužen do 10. 10.!

Vysoká škola uměleckoprůmyslová v Praze vyhlašuje open call na výstavní projekty do Galerie UM v roce 2026

Open call Galerie UM na rok 2026 prodloužen do 10. 10.!

Děkujeme všem, kteří se přihlásili do open callu Galerie UM, výsledky zveřejníme do 14. listopadu.

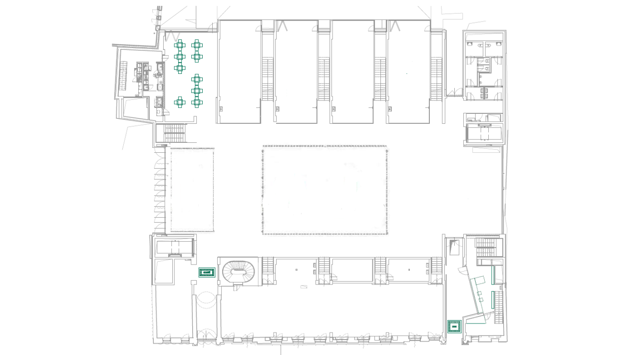
Galerie UM bude od roku 2026 po dobu rekonstrukce hl. budovy UMPRUM na nám. Jana Palacha přesunuta do haly Technologického centra UMPRUM, Mikulandská 5, Praha 1. Konkrétně do středové (dřevěné) části o rozloze 166 m2. 

Všechny přihlášené projekty posoudí výstavní komise UMPRUM (složení zde https://www.umprum.cz/cs/web/pro-verejnost/galerie/galerie-um), výsledky budou oznámeny do konce října 2025. K dispozici budou 4 výstavní termíny (2 termíny v období leden - duben a 2 termíny v období září - listopad), přesný harmonogram bude upřesněn během listopadu.

UMPRUM zajišťuje a financuje tyto náklady:
- veškeré energie
- ostrahu (kustodní službu) po dobu konání výstavy
- grafické zpracování a tisky propagačních materiálů k výstavě (pozvánka, plakát)
- PR výstavy (tisková zpráva, anonce na webu a sociálních sítích UMPRUM, distribuce emailových a tištěných pozvánek)
- pojištění prostoru do výše 2 mil. Kč (nezahrnuje připojištění exponátů)
- nasvícení výstavy
- fotodokumentaci výstavy (vernisáž, instalace)
- vernisáž výstavy (občerstvení, obsluha, ozvučení)
- standardní úklid během konání výstavy
- příspěvek na realizaci výstavy ve výši 50.000 Kč

Termín odevzdání přihlášek: 10. 10. 2025

Přihlášky včetně příloh zasílejte v elektronické podobě na sarka.vanova@umprum.cz
Formulář přihlášky naleznete níže.

Konzultace možná po telefonu a emailu, prohlídka prostor možná po předchozí domluvě osobně:
Šárka Váňová, výstavní oddělení
Technologické centrum UMPRUM, Mikulandská 5, Praha 1
T: 00420 734 457 360
E: sarka.vanova@umprum.cz